

























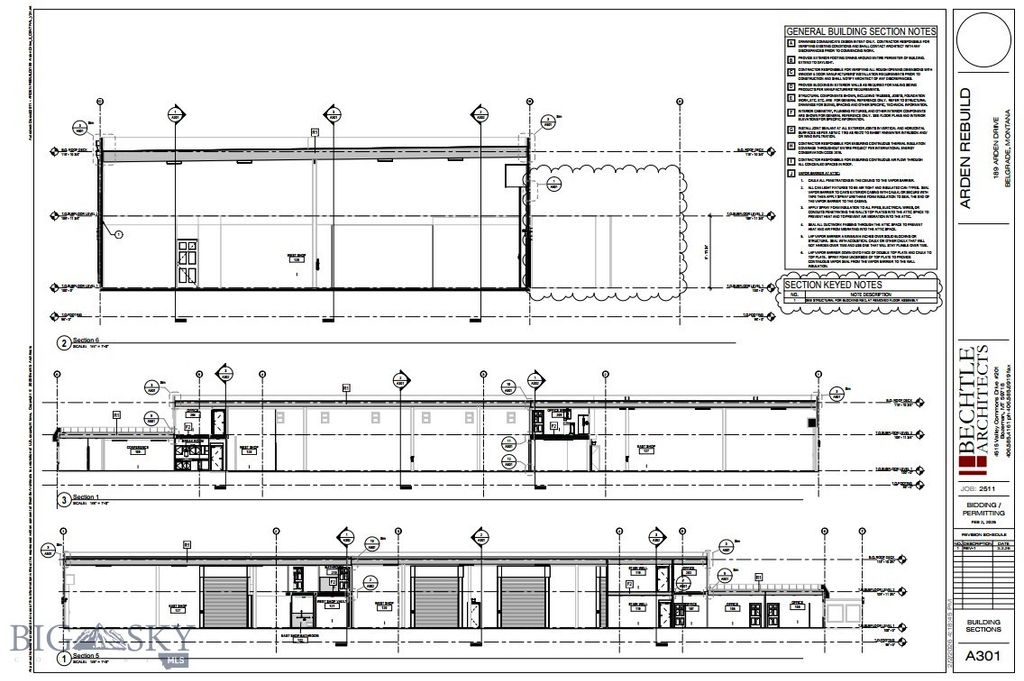
This ±18,384 SF warehouse with office and yard space, situated on 2.35 acres, is available for lease. Located in the Bruce Industrial Park in Belgrade, the property is serviced by well and septic, natural gas, and heavy three-phase power. Originally built in 1985, the building is currently undergoing reconstruction following a fire in 2024 that was isolated to a portion of the structure. The property is presently configured for a single user but can be demised for qualified tenants. While the completion date for the improvements is TBD, certain changes and tenant improvements may be incorporated if a tenant acts quickly prior to the completion of reconstruction. With close proximity to Interstate 90 and a large yard area, this property is well suited for shipping and receiving, warehousing, distribution center operations, or other industrial and commercial uses.
Get pricing, disclosures, and a private showing—Cami will respond promptly.